Công trình chú Cường Tây Mỗ
Công trình chú Cường Tây Mỗ
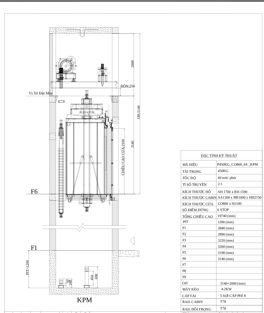
Công trình dùng cho chung cư mini tải trọng 450kg, kích thước hố thang 1700mm x 1590mm. Kích thước cabin 1300mm x 1000mm







Công trình dùng cho chung cư mini tải trọng 450kg, kích thước hố thang 1700mm x 1590mm. Kích thước cabin 1300mm x 1000mm






